ROBINSON, Elevation B

Elevation B

23′ Townhomes

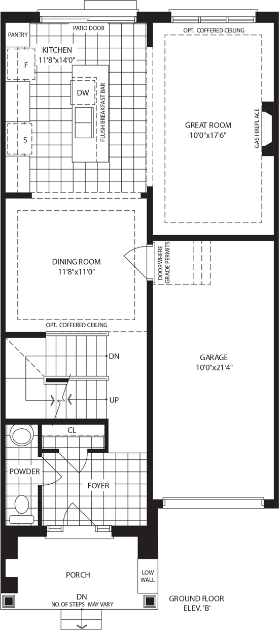
THE ROBINSON

1,751 SQ. FT. • ELEVATION B

Sold Out

Ground floor

Second floor

Basement

Materials, specifications, and floor plans are subject to change without notice. All house renderings are artist’s conceptions. All floor plans are approximate dimensions. Actual usable floor space may vary from the stated floor area. Number of steps on front elevation may vary depending on grade conditions. E. & O.E

For the safety of our Purchasers and staff, we are working remotely to assist you with the purchase of your new home.