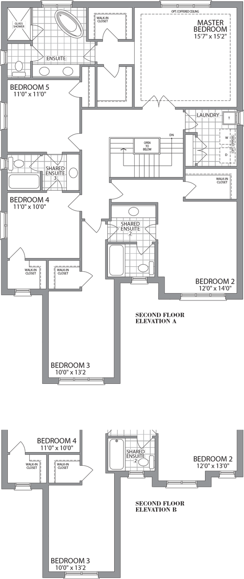
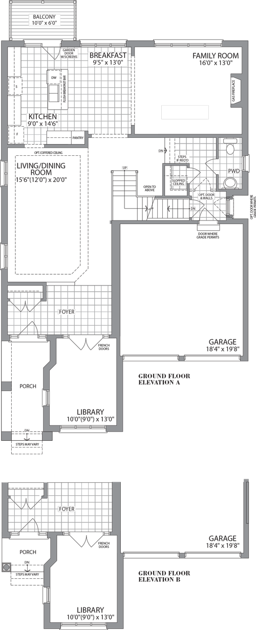
Winslow, Elevation A

Elevation A

Winslow, Elevation B

Elevation B

45′ Singles

THE Winslow

Front Elevation A 3,245 SQ.FT. | Front Elevation B 3,227 SQ.FT.

Ground floor

Second floor

Basement

Prices, figures, illustrations, sizes, features and finishes are subject to change without notice. Areas and dimensions are approximate and actual usable floor space may vary from the stated area. Layout may be reverse of the unit purchased. E. & O. E. All renderings are artist’s concept.

Address

1100 Dundas Street West
Whitby, ON
L1P 1Y5
Canada

Sales Centre Hours

Mon - Thurs: 1 pm - 8 pm
Fri: Closed
Weekends & Holidays: 11 am - 6 pm