The Rose

INVENTORY HOMES

The Rose

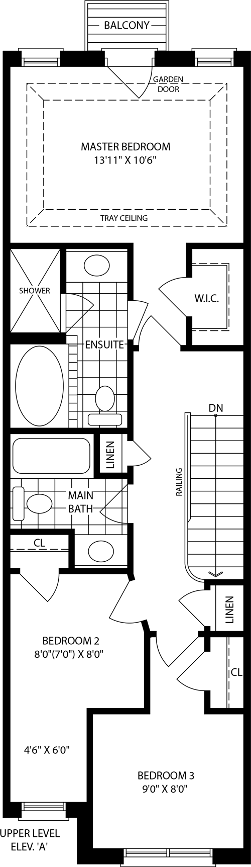
A 1,800 SQ.FT. | B 1,827 SQ.FT. | C 1,829 SQ.FT.
Building : 22
Unit : 4
Price : $933,900.00
Includes additional Bedroom with Ensuite on Lower Level ($25,000 Upgrade)

Main floor

Upper floor

Lower floor

Basement

Materials, specifications, and floor plans are subject to change without notice. All house renderings are artist’s conceptions. All floor plans are approximate dimensions. Actual usable floor space may vary from the stated floor area. Number of steps on front elevation may vary depending on grade conditions. E. & O.E.

Video Conference

VINCE ARIETE
MELISSA CRISTINI

416.736.6500